你知道細水霧滅火系統該如何操作?
細水霧滅火系統適用A類、B類、C類及帶電設備的火災,但不能直接應用于有遇水即發生爆炸或發生化學反應產生有害物質等材料的場合,如鋰、鈉、鉀、鎂、鈦、鋯、鈾等金屬或其化合物;也不能直接應用于有低溫液化氣體的場合(如液化天然氣)。

圖1-1泵式細水霧自動滅火系統結構示意圖
系統由一套滅火裝置對多個保護區實施消防保護的組合分配系統,其系統設計用量依據消防職業技能鑒定站進行消防培訓的需要。系統組成示意圖如上圖。


泵式細水霧自動滅火系統各主要部件名稱及其功能

表1-2泵式細水霧自動滅火系統主要參數
該系統具有自動啟動控制、電氣手動啟動控制、應急啟動控制三種控制方式。
4.1.1自動啟動控制
將火災報警滅火控制器、電氣控制柜的控制方式均設為“自動”方式:系統即處于自動滅火控制狀態,當保護區出現火情時,火災探測器將火災信號送往火災報警滅火控制器,火災報警滅火控制器發出聲、光報警信號,同時發出滅火指令打開相應保護區的分區控制閥和泵組,向相應保護區噴射細水霧實施滅火。
確認火災撲滅后,按下火災報警滅火控制器上的復位按鈕,即可關閉分區控制閥和泵組,使系統恢復到伺服狀態。
4.1.2電氣手動啟動控制
當保護區人為發現火情時,可按下相應區域的手動報警按鈕或火災報警滅火控制器上的相應區的啟動按鈕,即可按預定程序啟動滅火系統,釋放細水霧,實施滅火。
確認火災撲滅后,復位手動報警按鈕和火災報警滅火控制器上的復位按鈕,即可關閉分區控制閥和泵組。使系統恢復到伺服狀態。
說明:在自動狀態下,具有電氣手動控制優先功能。
4.1.3應急啟動控制
當保護區出現火情,火災報警滅火控制系統失靈時,可手動打開相應保護區分區控制閥,再將電氣控制柜“手動/自動”選擇開關置于“手動”位置,按下電氣控制柜上的啟動按鈕,即可向相應保護區噴射細水霧實施滅火。
確認火災撲滅后,按下電氣控制柜上的停止按鈕關閉水泵,手動關閉分區控制閥,使系統恢復到伺服狀態。
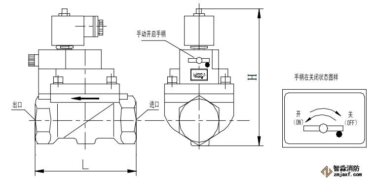
5.1.1結構與外形尺寸

分區控制閥結構與外形示意圖

表1-3分區控制閥主要技術參數
分區控制閥主要用于組合分配系統中,以控制滅火劑流向,保證滅火劑進入發生火災的保護區。它安裝在系統分配管上,出口端與通向保護區的滅火劑輸送管道連接。
分區控制閥平時處于常閉狀態,具有電啟動和應急手動兩種開啟方式。
電啟動:火災發生時,由火災報警滅火控制器給出DC24V有源信號,分區控制閥開啟,滅火劑經分區控制閥流向相應保護區。
手動開啟:按閥體操作標牌圖示方向轉動手動開啟手柄,到圖示位置,分區控制閥開啟。
警告:分區控制閥電啟動后,斷電后可自動復位。若手動開啟分區控制閥,復位則必須手動,將手動開啟手柄轉動到關(OFF)位置。

壓力開關結構與外形
5.2.2主要技術參數

XYK2/150型壓力開關主要技術參數
5.2.3使用說明
壓力開關安裝在分區控制閥之后,系統釋放滅火劑時使其動作,發出反饋信號給火災
報警控制器,顯示滅火劑已釋放至相應的保護區。當壓力消失時,壓力開關可自動復位。
5.3.1結構與外形尺寸

細水霧噴頭結構與外形
主要參數

細水霧噴頭主要參數
5.4.1概述
旁通閥是細水霧滅火系統中的重要部件,通過它能保證泵的啟動、停止時空載運行。
5.4.2結構與外形同分區控制閥
5.4.3主要技術參數


旁通閥主要技術參數
5.4.4使用說明
旁通閥安裝于泵體安全閥一側,由電氣控制柜控制。水泵啟動時旁通閥打開3~4秒后關閉,水泵停止時旁通閥也打開3~4秒后關閉。
5.5.1結構示意

圖1-7儲水箱結構示意圖
5.5.2各部件名稱及其功能見下表

表1-7儲水箱各部件名稱及其功能
5.6.1概述
泵組是細水霧滅火系統中的重要部分,能給細水霧滅火系統提供壓力水源。
泵體兩面都有進出口,便于安裝。安裝時基礎必須有足夠的強度、大小,以保證設備就位后不下沉、不彎曲、不變形。基礎施工必須水平,以免設備安裝就位后傾斜。泵的機身上標有方向標識,安裝時必須保證旋轉方向正確。
5.6.2結構示意

圖1-8泵組結構示意圖
5.6.3部件名稱及其功能

5.6.4高壓柱塞泵使用說明參照其使用說明書。
5.7.1結構示意(見圖1-9)

圖1-9補水組件結構示意圖
5.7.2部件名稱及其功能見表1-9:

表1-9補水組件部件名稱及其功能
5.7.3補水電磁閥
5.7.3.1概述
補水電磁閥由電氣控制柜控制,通過它能自動保證水箱中的水位適中。
5.7.3.1結構與外形尺寸(見圖1-10)

圖1-10補水電磁閥結構與外形
5.7.3.2主要技術參數見表1-10

表1-10補水電磁閥主要技術參數
5.7.3.3使用說明
補水電磁閥安裝于補水口,用以控制水箱的水位,當水位低時打開,水位高時關閉。
補水電磁閥平時處于常閉狀態,具有電啟動和機械手動兩種開啟方式。
電啟動:水位低時,由電氣控制柜給出DC24V信號,補水電磁閥開啟,給水箱注水。
手動開啟:按閥體操作標牌圖示開閥方向轉動手動開啟手柄,到圖示位置,補水電磁閥開啟。該方式在有必要時采用。
警告:補水電磁閥啟動后,斷電后可自動復位。若手動開啟補水電磁閥,復位則必須手動,將手動開啟手柄轉動到關(OFF)位置。
5.7.4.1概述
過濾器是細水霧滅火系統中的重要部件,通過它過濾系統中可能出現的雜質,使滅火劑輸送流暢,防止噴頭堵塞。
5.7.4.2主要技術參數見表1-11:

表1-11過濾器主要技術參數
5.7.4.3結構與外形尺寸(見圖1-11)

圖1-11過濾器結構與外形尺寸
5.7.4.4使用說明:
安裝于補水口,補水電磁閥之前。連接時螺紋要正確,連接后不允許有滲漏現象。在細水霧滅火系統就位調試后,每次滅火或噴射作業后應拆下堵頭,撤下堵頭,取出濾網,清洗干凈,裝好繼續使用。
5.8電氣控制柜及火災報警滅火控制器詳細操作請參照相應說明書!
5.9.1概述
儲水箱在使用過程中,一是要確保向水箱注水時里面氣體順利排出,二是防止儲水箱里面水過滿,所以結合實際需要在儲水箱一側設置一滿液位溢水閥。
5.9.2結構與外形同普通球閥
5.9.3使用說明
滿液位溢水閥安裝于儲水箱一側,和儲水箱補水組件高度基本處于同一液位。
滿液位溢水閥平時為常開狀態,不得隨意關閉,否則在使用過程中會造成液位過高,
儲水箱里面多余氣體排不掉,造成儲水箱向外癟出、變形,嚴重時儲水箱變形損壞。
操作者應認真閱讀本產品使用說明書和相應的柱塞泵、電氣控制柜、火災報警滅火控制器說明書,熟悉相關圖紙資料。
本系統裝置與火災報警滅火控制系統一起,組成完整的細水霧滅火系統,具有自動啟動控制、電氣手動啟動控制、應急啟動控制三種控制方式。
在鑒定站進行技能操作時可分別按下例步驟實現上述三種控制方式的操作:
6.3.1自動啟動控制:
將火災報警滅火控制器上的控制方式選擇為“自動”位置,電氣控制柜“手動/自動”選擇開關置于“自動”位置,使系統處于自動控制狀態。
通過相應措施觸發火災探測器,火災探測器將火災信號送往火災報警滅火控制器,火災報警滅火控制器發出聲、光報警信號,同時發出滅火指令啟動相應保護區的分區控制閥和泵組,向相應保護區噴射細水霧實施滅火。
確認火災撲滅后,按下火災報警滅火控制器上的復位按鈕,停止噴射細水霧完成滅火。
6.3.2電氣手動啟動控制:
將火災報警滅火控制器上的控制方式選擇為“自動”或“手動”位置,電氣控制柜“手動/自動”選擇開關置于“自動”位置,按下相應保護區的手動報警按鈕或火災報警滅火控制器上相應保護區的啟動按鈕,火災報警滅火控制器發出聲、光報警信號,同時發出滅火指令啟動相應保護區的分區控制閥和泵組,向相應保護區噴射細水霧實施滅火。
確認火災撲滅后,按下火災報警滅火控制器上的復位按鈕,停止噴射細水霧完成滅火。
6.3.3應急啟動控制:

6.3.4系統復位:
滅火操作完成后,應及時對系統進行復位,使系統處于正常伺服狀態,執行以下操作程序:
a)如為自動或電氣手動啟動,均需按下火災報警滅火控制器上的復位按鈕,即可關閉水泵、分區控制閥。
b)如為應急啟動控制,按下電氣控制柜上的停止按鈕,手動關閉分區控制閥。
系統水箱具有自動和手動兩種補水功能,具體程序如下。
6.4.1自動補水:
水箱自帶補水電磁閥、連桿浮球液位儀,補水電磁閥由電氣控制柜控制,通過它能自動保證水箱中的水位適中,不需要任何人為操作。當水箱水位低于低液位時,連桿浮球液位儀輸出相關信號給電氣控制柜,由電氣控制柜給出DC24V開閥信號,補水電磁閥開啟,給水箱注水;當補水到水箱水位高于高液位時,連桿浮球液位儀輸出相關信號給電氣控制柜,由電氣控制柜斷開DC24V開閥信號,補水電磁閥關閉,補水自動完成。
6.4.2手動補水:
在必要時、當自動補水功能喪失時,按閥體操作標牌圖示開閥方向轉動手動開啟手柄,到圖示位置,補水電磁閥開啟,給水箱注水;當補水到水箱充滿時,溢水閥出口有水流出,此時,按閥體操作標牌圖示關閥方向轉動手動開啟手柄,到圖示位置,補水電磁閥關閉,手動補水完成。
該系統必須建立管理、檢查和維護制度,并有專人負責,使系統保持良好的工作狀態。
維護人員必須熟悉本系統的原理、性能和操作維護規程。
火災報警控制系統的定期檢查和試驗。
7.3.1每日應檢查火災報警控制器的功能。
7.3.2每季度應檢測和試驗火災報警控制系統的下列功能:
7.3.2.1試驗火災報警裝置的聲光顯示;
7.3.2.2對備用電源進行1~2次充放電試驗,1~3次主電源和備用電源自動切換試驗;
7.3.2.3試驗壓力開關報警功能、信號顯示;
7.3.2.4用自動或手動檢查消防泵及分區控制閥的控制顯示功能;
7.3.3具體詳見火災報警滅火控制系統的維護說明。
7.4.1每月應手動盤車運轉一次。
7.4.2每季度應電動運轉一次,運轉時間不應小于1min,運轉時應打開試水閥,停機后,應關閉試水閥。
7.4.3泵的維護詳見泵的維護說明。
水箱水位每月應檢查一次。
噴頭的外觀每月應檢查一次,當噴頭上有異物時應及時清除。
7.7.1試驗宜采用自動控制或電氣手動控制方式。
7.7.2應用透明塑料罩罩住噴頭并收集噴水或用塑料罩覆蓋被保護物。
7.7.3噴霧試驗宜持續0.5min~1min,試驗結果應符合下列規定:
a)系統各部件工作正常,保護區內每個噴嘴均應正常噴出細水霧,且泵的壓力表顯示值符合要求。
b)有關聲光報警信號正確。
c)設備和管道無明顯晃動和機械損壞。
檢查出的故障應及時排除,使系統始終處于正常工作狀態。
每次系統運行(滅火或試驗)后,應按本說明書第8.3.4條對系統進行復位。
每次系統運行(滅火或試驗)后,系統的過濾器濾網必須清洗或更換。
維護保養、維修和試驗必須做好詳細記錄。
無關人員勿亂摸亂動本裝置部件,以免發生意外。
海灣消防安全有限公司主營:GST海灣消防報警設備銷售,消防工程施工改造,氣體滅火、電氣/漏電火災、消防水系統施工安裝,售后維修保養,檢測,調試,海灣消防網站:http://www.jianlaiyiyao.com/;海灣消防服務熱線:4006-598-119
本頁關鍵詞:


蘇公網安備32058102002148號